Enquanto isso, outros profissionais entregam mais rápido, com mais qualidade e cobram melhor, pois possuem uma base pronta.
Engenheira Civil, pós graduada em Manutenção Industrial e Especialização BIM, com mais de 8 anos de experiência em obras, projetos e freelancers. Prestei serviços para grandes empresas como:
Durante essa jornada, eu reuni o que realmente funcionava na prática:
Planilhas que facilitaram a gestão das minhas obras e projetos;
Projetos completos em AutoCAD que já me salvaram o dia;
Projetos em Revit, contendo famílias e configurações que utilizo até hoje nos meus projetos.
Passamos por dificuldades no início pela falta de suporte e ajuda. E foi pensando nisso que agora estou disponibilizando todo esse material exclusivo para você! Pronto, validado e testado em campo.











São mais de 650 planilhas automatizadas, prontas para uso, que cobrem praticamente todas as áreas da engenharia civil, manutenção industrial e projetos.
Contém planilhas para: fundações, estacas, sapatas, lajes, vigas, alvenaria, orçamentos, dosagem de concreto, instalações elétricas, instalações hidrossanitárias, mecânica, planejamento, estruturas metálicas, pintura, piso industrial — e muito mais.













Um verdadeiro arsenal de projetos executivos prontos e 100% editáveis, que vão elevar seu nível técnico e acelerar suas entregas.
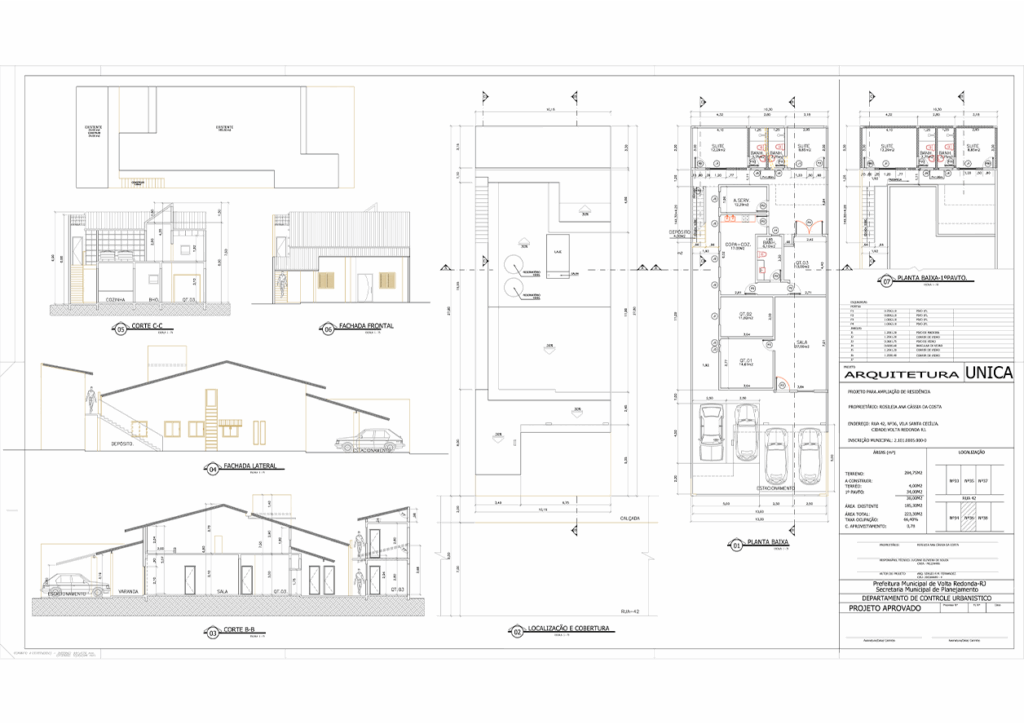
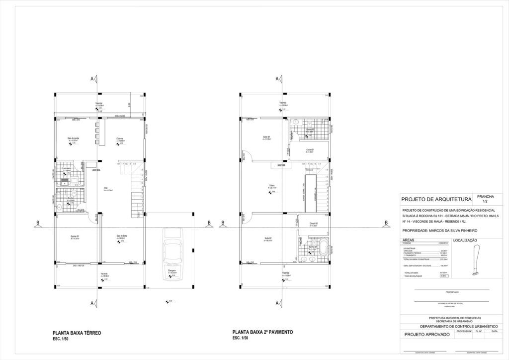
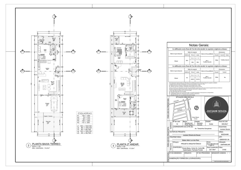
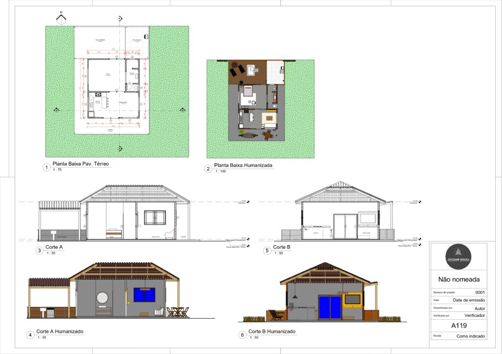
Organizado por categorias, o Pack inclui: Projetos arquitetônicos (edifícios, casas, sobrados, igrejas, consultórios, salas comerciais, bares, parques, supermercados e muito mais); Projetos elétricos; Hidrossanitários; Sistemas de prevenção e combate a incêndio; Barragens; Estruturas metálicas e em madeira; Concreto armado e alvenaria estrutural; E ainda: projetos autorais e exclusivos, prontos para personalizar conforme suas necessidades.






















Projetos autorais 100% editáveis, desenvolvidos para facilitar a aplicação e personalização conforme sua necessidade.
Ideal para elevar o nível dos seus projetos e economizar horas de trabalho com modelos prontos, profissionais e de alta qualidade.
Inclui projetos de: casas térreas, sobrados, edifícios residenciais e comerciais, casas de campo, escolas, centros comerciais, centros de saúde, ginásios, hotéis, residências de alto padrão, residências populares — entre muitos outros.
Eu poderia facilmente cobrar mais de R$1.000 por todo esse conteúdo.
Mas meu objetivo é te ajudar a alcançar o profissionalismo, a valorização e o reconhecimento que você merece no mercado.
Por isso, estou disponibilizando os packs que transformaram minha trajetória por um valor simbólico!
Promoção por tempo limitado! Finalize a compra antes do relógio acabar.
+650 Planilhas Inteligentes
Bônus surpresa!
6x de R$12,57
ou R$ 67,00 reais à vista.
+3.800 Projetos Completos
Bônus surpresa!
6x de R$18,20
ou R$ 97,00 reais à vista.
+200 Projetos Completos
Bônus surpresa!
6x de R$18,20
ou R$ 97,00 reais à vista.
+650 Planilhas Inteligentes
+3.800 Projetos AutoCAD
+200 Projetos Revit
Bônus surpresa!
6x de R$25,70
ou R$ 137,00 reais à vista.
Eu confio tanto na qualidade e no valor do que criei que faço questão de te dar tranquilidade na hora da compra.
Se em até 7 dias você sentir que o material não foi útil para você, que não te ajudou ou não atendeu às suas expectativas, é só me mandar uma mensagem.
⠀
Eu devolvo 100% do seu dinheiro.
Sem letras miúdas, sem burocracia. Meu compromisso é com a sua satisfação e com a transformação do seu dia a dia profissional!
Este conteúdo é ideal para engenheiros civis, arquitetos, estudantes, freelancers, construtores, tecnólogos, desenhistas técnicos, BIM Managers e todos os profissionais da construção civil que desejam:
• Acelerar suas entregas;
• Organizar seus processos;
• Elevar o nível técnico dos projetos.
Tudo isso com materiais prontos, editáveis e tecnicamente confiáveis.
Todos os arquivos de AutoCAD estão em .dwg, prontos para edição e compatíveis com versões recentes do software. Os projetos de Revit estão em .rvt, organizados por disciplinas e categorizados por tipos de construção.
Não. O PACK REVIT PRO contém exclusivamente projetos prontos e completos, modelados em Revit. Tudo que está incluído é funcional, aplicável e já estruturado para visualização e modificação, mas sem famílias externas ou templates avulsos.
Sim. As planilhas foram feitas no Excel tradicional, com fórmulas inteligentes e automações que funcionam sem necessidade de internet. Basta abrir no Excel e começar a usar — sem instalações adicionais.
Com certeza. Todos os materiais foram testados e utilizados em obras reais, tanto públicas quanto privadas. Servem como base sólida para projetos técnicos, memoriais, quantitativos, orçamentos e documentação.
Sim! Você pode usar, adaptar e apresentar os projetos em consultorias, licitações, obras particulares, portfólio e onde mais quiser. O conteúdo foi pensado para dar agilidade e profissionalismo imediato às suas entregas.
Nesse caso, fique a vontade para me chamar no whatsapp, clique aqui. E relaxa que sou eu mesma que vou falar direto com você, sem robô!
Se você chegou até aqui, é porque está cansado de perder tempo com retrabalhos, planilhas desorganizadas e projetos começando do zero.
Eu sei exatamente como é. Também já passei por isso. Foi na pressão dos projetos e na correria do dia a dia nas obras que precisei encontrar soluções reais pra entregar com qualidade, ganhar mais e viver da minha profissão com segurança.
E foi assim que nasceu cada pack que você vê aqui. Tudo o que uso, tudo o que me salvou — agora está nas suas mãos. A diferença entre o caos e o controle pode começar com um clique.
2025 © Todos os direitos reservados.